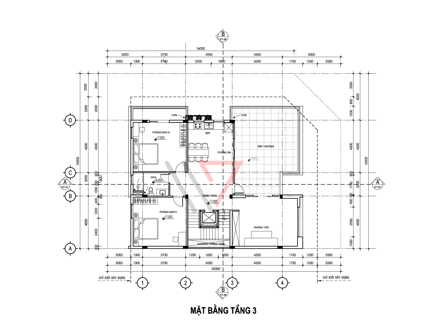
Biệt thự KĐT Mỹ Gia - Nha Trang
Diện tích đất: 295m2
Diện tích xây dựng: 480m2
Năm thiết kê: 2022
Năm hoàn thành thi công: 2023





Diện tích xây dựng: 480m2
Năm thiết kê: 2022
Năm hoàn thành thi công: 2023





Dự án khác
