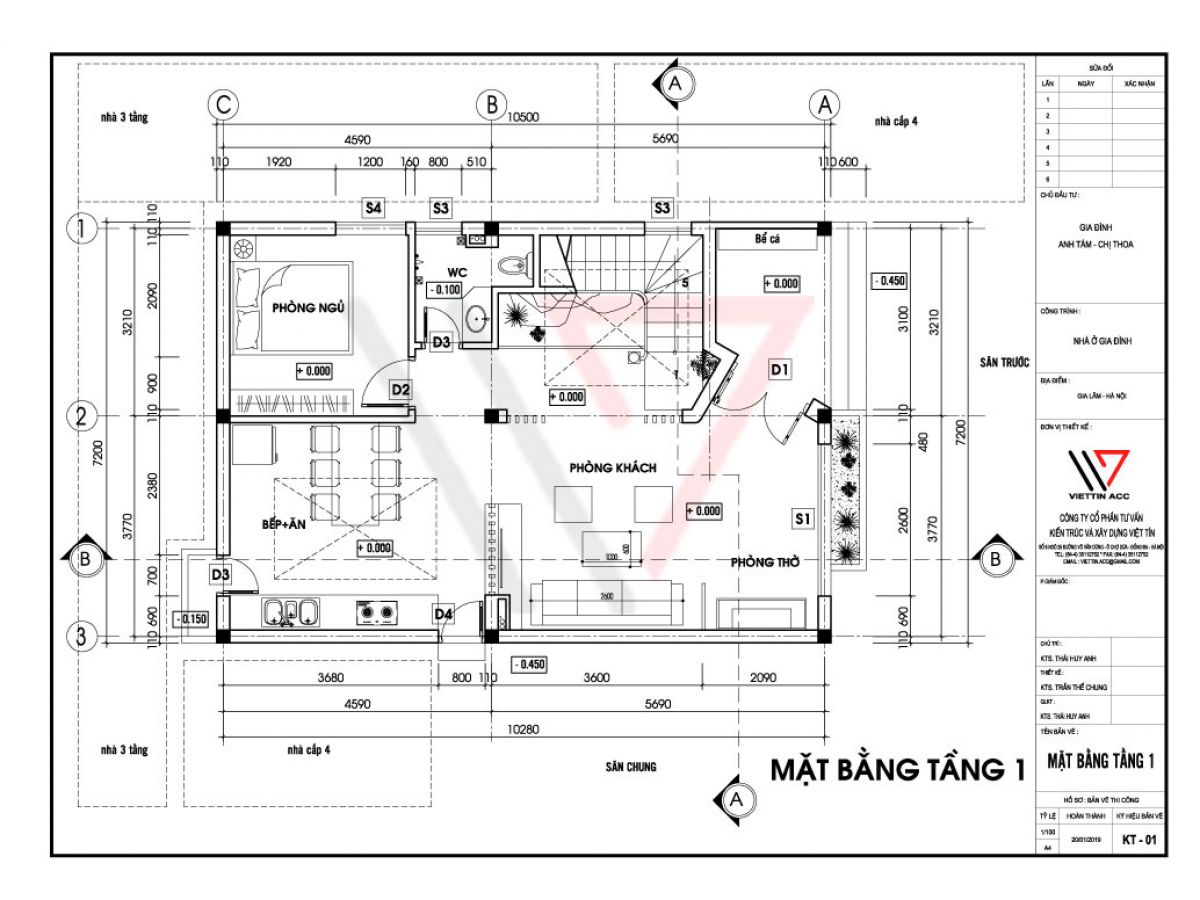
Biệt thự GĐ anh TÁM - Gia Lâm
Diện tích xây dựng: 80m2
Diện tích sàn: 280m2
Tầng cao: 3 tầng
Năm thiết kế: 2019
Năm Xây dựng hoàn thiện: 2019
Diện tích sàn: 280m2
Tầng cao: 3 tầng
Năm thiết kế: 2019
Năm Xây dựng hoàn thiện: 2019
Dự án khác
