Biệt thự gia đinh - Hoài Đức
Trong điều kiện dịch Covid căng thẳng ở nhiều tỉnh thành trên cả nước, gần đây Hà Nội bắt đầu phải giãn cách xã hội theo Chỉ thị 16, Do đó công trình này đã được Việt Tín thực hiện online 100% từ việc trao đổi đề bài, trao đổi thống nhất phương án, đến triển khai hồ sơ bản vẽ.
Quan điểm của Việt Tín là với kiến trúc “gu” của mỗi người là khác nhau, ngay cả cùng một người nhưng khác thời điểm, khác tâm trạng cũng có thể cho thấy những sở thích khác nhau về cái đẹp, do vậy để công trình luôn bền về hình thức, bền về công năng với thời gian và mỗi khi sử dụng gia chủ luôn luôn yêu thích ngôi nhà của mình, Việt Tín luôn tiếp cận và đặt vấn đề xuất phát từ nhu cầu về công năng sử dụng, phong cách và lối sống.
Đối với công trình này, gia đình 2 bác tuy đã nhiều tuổi nhưng hai bác lại có tư duy rất mở quan điểm về cái đẹp còn trẻ hơn cả người trẻ, các anh chị con của ông bà cũng vậy, cùng với đó gia đình 2 bác nêu các yêu cầu rất rõ ràng cụ thể và luôn tôn trọng, tin tưởng sự tư vấn của đơn vị có chuyên môn.
Với mong muốn dành nhiều không gian cho cây xanh, sân vườn cùng phong cách kiến trúc đơn giản hiện đại, hòa vào thiên nhiên, phương án thiết kế Việt Tín đưa ra được trao đổi và thống nhất chỉ trong 2-3 lần trao đổi trực tiếp qua điện thoại và zalo.
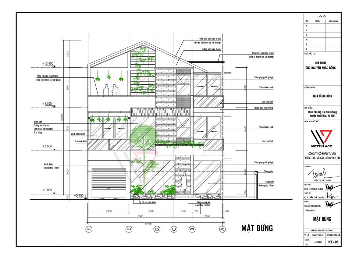
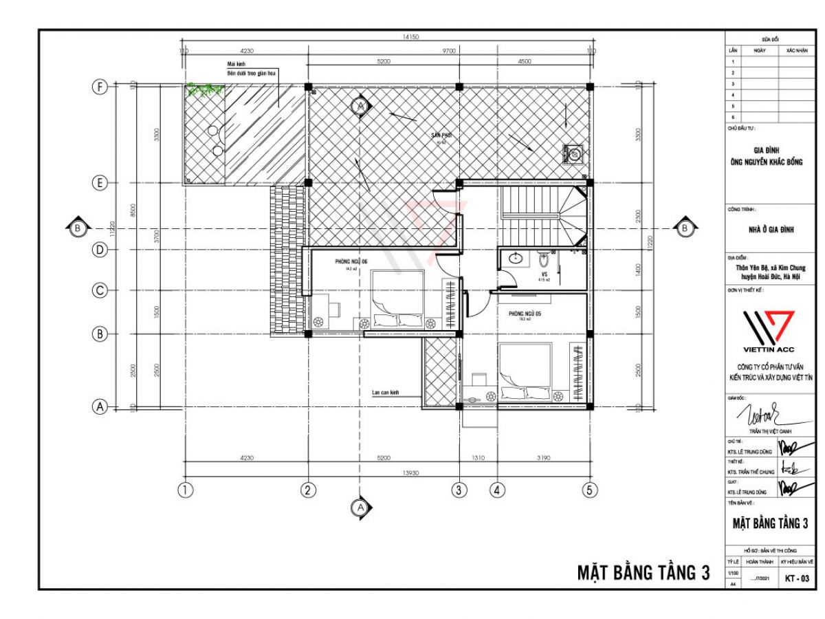
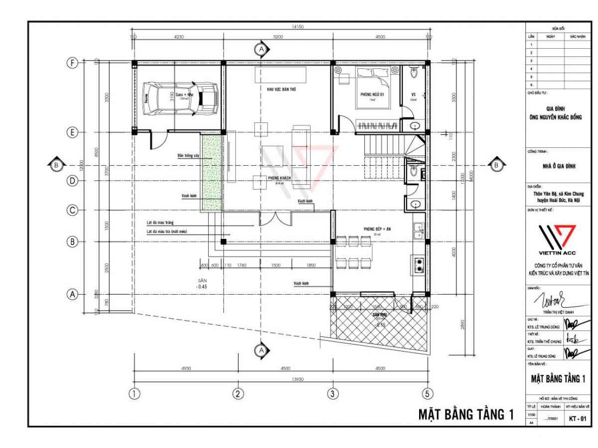
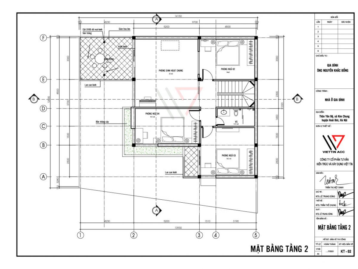
Phương án bố trí không gian và hình ảnh 3D Việt Tín đưa ra đã được duyệt ngay lần gửi đầu tiên. Với công năng phù hợp với nhu cầu sử dụng đã được thảo luận trước, các không gian phòng khách, phòng ăn, sinh hoạt chung và các phòng ngủ được thiết kế tiếp xúc trực tiếp với thiên nhiên, sân vườn qua các mảng kính lớn quay về hướng Nam. Kiến trúc chung đơn giản, hiện đại, cổng vào cũng được lưu ý thiết kế với hình thức hài hòa với kiến trúc chung của ngôi nhà mang đến thiện cảm ngay từ đầu khi bắt đầu bước vào.
Đây là một công trình được thực hiện online hoàn toàn 100% và nhận được sự hài lòng rất lớn từ chủ đầu tư.
Việt Tín xin được gửi a/c phương án được duyệt chờ ngày thi công, rất mong nhận được thêm các ý kiến đóng góp và góc nhìn của các anh chị về hình thức, quan điểm và tư duy thiết kế; Việt Tín cũng rất hy vọng sẽ được góp sức xây dựng ngôi nhà mơ ước cho các anh chị trong một tương lại gần nhất.
Địa chỉ công trình: Kim Chung – Hoài Đức - Hà Nội
Diện tích khu đất: 185 m2 ( mặt tiền 12m)
Quy mô: 3 tầng
Diện tích sàn xây dựng: 395m2
Diện tích xây dựng: 115m2
Hoàn thành: Tháng 7/2021 (năm covid 19 thứ 2)
Quan điểm của Việt Tín là với kiến trúc “gu” của mỗi người là khác nhau, ngay cả cùng một người nhưng khác thời điểm, khác tâm trạng cũng có thể cho thấy những sở thích khác nhau về cái đẹp, do vậy để công trình luôn bền về hình thức, bền về công năng với thời gian và mỗi khi sử dụng gia chủ luôn luôn yêu thích ngôi nhà của mình, Việt Tín luôn tiếp cận và đặt vấn đề xuất phát từ nhu cầu về công năng sử dụng, phong cách và lối sống.
Đối với công trình này, gia đình 2 bác tuy đã nhiều tuổi nhưng hai bác lại có tư duy rất mở quan điểm về cái đẹp còn trẻ hơn cả người trẻ, các anh chị con của ông bà cũng vậy, cùng với đó gia đình 2 bác nêu các yêu cầu rất rõ ràng cụ thể và luôn tôn trọng, tin tưởng sự tư vấn của đơn vị có chuyên môn.
Với mong muốn dành nhiều không gian cho cây xanh, sân vườn cùng phong cách kiến trúc đơn giản hiện đại, hòa vào thiên nhiên, phương án thiết kế Việt Tín đưa ra được trao đổi và thống nhất chỉ trong 2-3 lần trao đổi trực tiếp qua điện thoại và zalo.
Phương án bố trí không gian và hình ảnh 3D Việt Tín đưa ra đã được duyệt ngay lần gửi đầu tiên. Với công năng phù hợp với nhu cầu sử dụng đã được thảo luận trước, các không gian phòng khách, phòng ăn, sinh hoạt chung và các phòng ngủ được thiết kế tiếp xúc trực tiếp với thiên nhiên, sân vườn qua các mảng kính lớn quay về hướng Nam. Kiến trúc chung đơn giản, hiện đại, cổng vào cũng được lưu ý thiết kế với hình thức hài hòa với kiến trúc chung của ngôi nhà mang đến thiện cảm ngay từ đầu khi bắt đầu bước vào.
Đây là một công trình được thực hiện online hoàn toàn 100% và nhận được sự hài lòng rất lớn từ chủ đầu tư.
Việt Tín xin được gửi a/c phương án được duyệt chờ ngày thi công, rất mong nhận được thêm các ý kiến đóng góp và góc nhìn của các anh chị về hình thức, quan điểm và tư duy thiết kế; Việt Tín cũng rất hy vọng sẽ được góp sức xây dựng ngôi nhà mơ ước cho các anh chị trong một tương lại gần nhất.
Địa chỉ công trình: Kim Chung – Hoài Đức - Hà Nội
Diện tích khu đất: 185 m2 ( mặt tiền 12m)
Quy mô: 3 tầng
Diện tích sàn xây dựng: 395m2
Diện tích xây dựng: 115m2
Hoàn thành: Tháng 7/2021 (năm covid 19 thứ 2)
Dự án khác
